Kort om fælleslokalet “Brynet”

Ved leje af lokalet gælder følgende vilkår:

  • Fælleslokalet ”Brynet” kan udelukkende benyttes af beboere i PKA’s tre ejendomme i Holbæk Have – Kløver Hus, Lindehuset og Nellike Hus
  • Lokalet kan bookes hverdage med aktiviteter mellem kl. 10 og 23
  • Lokalet kan bookes i weekender. Det er tilladt at holde fest (fredag-lørdag) mellem kl. 10 og 01.
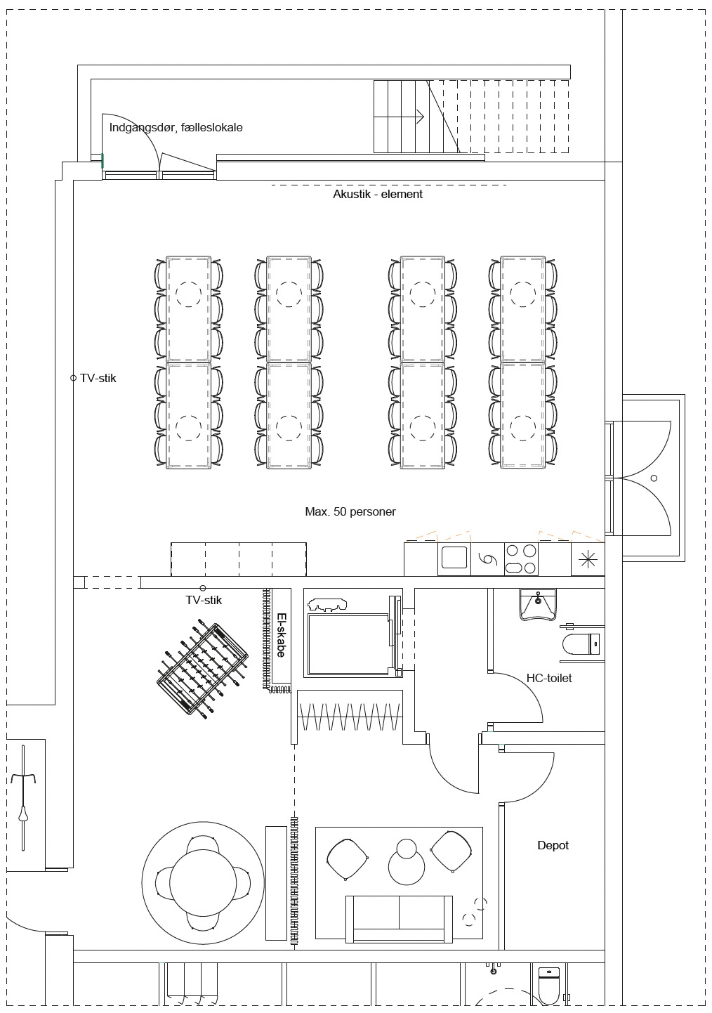
  • Lokalet er brandgodkendt til 50 personer.
  • Lokalet må ikke bruges til politiske, religiøse eller kommercielle formål.
  • Fælleslokalet kan ikke lejes nytårsaften.
  • Ved leje af lokalet er det den person, der er angivet som lejer, der har ansvar for lokalet i lejeperioden mht. overholdelse af reglement, rengøring, oprydning samt aflevering af nøgler.
  • Lokalet må ikke videre udlejes.
  • Lokalet er røgfrit

Lokalet

Fælleslokalet ”Brynet” er beliggende:
Nellike Hus
Fyrren 16A (kælder)
4300 Holbæk

Se kort

Adgang til lokalet sker via kældertrappen (hjørnet af Fyrren og Birken) med en udleveret kode – som virker i
den lejede periode.

Faciliteter:

  • Køkken med køle-/fryseskab, opvaskemaskine, ovn og induktionsplader samt service til 50 personer
  • Handicapvenligt toilet
  • Det tilstødende lokale er indrettet i 3 zoner. En til bordfoldbold, En til brætspil og krea-ting og en til
    afslapning

Se inventarliste

Medbring selv bl.a. viskestykker, karklud og opvasketabs til køkken samt toiletpapir og håndklæder til toilet.

Hvem må bruge lokalet?

  • Fælleslokalet ”Brynet” kan udelukkende benyttes af beboere i PKA’s tre ejendomme i Holbæk Have – Kløver Hus, Lindehuset og Nellike Hus.
  • Lokalet må ikke videre udlejes.
  • Lejer har ansvaret for det lejede lokale.

Hvem står for udlejning?

Deas står for udlejning og kan kontaktes på telefon 7030 20 20 (hverdage mellem 8 og 16).

Hvad koster det?

Priser: (pr. 1. november 2023)

Hverdage (mandag – torsdag): Kr. 600 pr. dag
Weekend (fredag – søndag): Kr. 1.350
Depositum: Kr. 2.000.

Beløbet for leje af lokalet samt depositum opkræves af DEAS ved næstkommende huslejebetaling.

Lokalerne vil være disponible fra kl. 10.00.

Brug og ansvar

  • Lejer modtager lokalet i rengjort stand.
  • Lokalet må ikke bruges til politiske, religiøse eller kommercielle formål.
  • Lokalet kan ikke lejes nytårsaften.
  • Rygning i fælleslokalet er forbudt. Der henvises til udendørsområdet nord for indgangstrappen.
  • Vis hensyn til omgivelserne – musik og støj må ikke genere de omkringboende lejere.
  • Døre og vinduer skal holdes lukket efter kl. 22.00 både hverdage og i weekender og musikken skal dæmpes.
  • Ved udluftning og åbning af døre og vinduer skal al støj og musik dæmpes til absolut minimum – uagtet tidspunkt.
  • Enhver fest i weekender SKAL afsluttes senest kl. 01.00 af hensyn til de øvrige beboere og naboer.

Når lokalet forlades

Oprydning i forbindelse med brug af fælleslokalet sker af lejer, som altid skal sørge for følgende når
fælleslokalet forlades:

  • Tømme opvaskemaskinen, køleskab og ovn.
  • Sætte stole og borde på plads.
  • Tømme affaldsspande og bortskaffe affald i de respektive containere på områdets miljøstationer.
  • Rydde og rengøre køkkenet.
  • Rengøre toiletterne.
  • Feje og vaske gulve.
  • Lukke og låse døre og vinduer.
  • Rydde og rengøre udenomsarealer.
  • Slukke lys.

Er lokalet ikke rengjort ved afleveringen vil et gebyr for rengøring på 1.200 kr. blive fratrukket depositum.
Til køkken og toiletter sørger DEAS for, at der forefindes de mest nødvendige rengøringsmidler, kost og spande mv.
Eventuelle mangler skal rettes direkte til DEAS på 7030 2020, hverdage fra 8-16.

Skader og ansvar

Lejeren er ansvarlig for de lejede lokaler, service, inventar og øvrige udstyr og har erstatningspligt for manglende, misbrugt eller ødelagt udstyr. Betaling af erstatning skal ske straks ved modregning i depositum.